Gagne de la cryptomonnaie GRATUITE en 5 clics et aide institut numérique à propager la connaissance universitaire >> CLIQUEZ ICI <<

CHAPITRE I : Des pôles fonctionnels non négligeables

Non classé

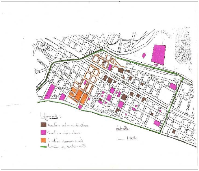
Figure 6 : Carte de la localisation des fonctions principales du centre-ville de Rufisque

Figure 6 étude du centre-ville de rufisque caractéristiques du paysage urbain et mutations fonctionnellesSource : réalisation personnelle

Page suivante : –A– La fonction commerciale :

Retour au menu : ETUDE DU CENTRE-VILLE DE RUFISQUE :CARACTERISTIQUES DU PAYSAGE URBAIN ET MUTATIONS FONCTIONNELLES