Institut numerique

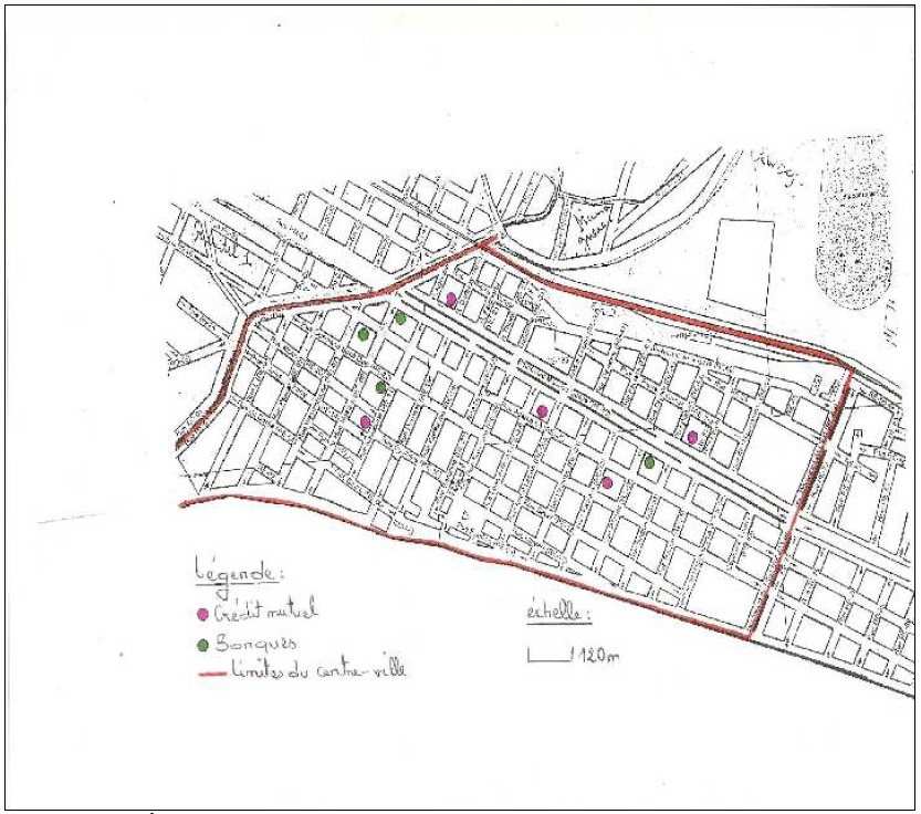
–B– Un pôle bancaire en constitution :

Si on devait mesurer la place des nouveaux pôles dans le renforcement des fonctions du centreville,
on ne se tromperait pas en insistant sur l’importance jouée par les structures bancaires. En
effet leur apparition dans le paysage du « vieux tissu » s’est faite en un tel rythme, qu’il y’a eu
beaucoup de maisons qui ont dû être démolies.

Figure 10 : localisation des banques au centre-ville de Rufisque

Source : réalisation personnelle

Page suivante : –C– De nouveaux métiers :

Retour au menu : ETUDE DU CENTRE-VILLE DE RUFISQUE :CARACTERISTIQUES DU PAYSAGE URBAIN ET MUTATIONS FONCTIONNELLES